








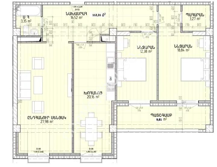
Վաճառվում է 3 սենյականոց բնակարան նորակառույց շենքում Պարույր Սևակի փողոցում։ Բնակարանը գտնվում է զրոյական վիճակում, շահագործման կհանձնվի դեկտեմբերին։
- Wifi
- Բաց պատշգամբ
- գազ
- Լողավազան
- Խոհանոցի կահույք
- Խորդանոց
- Կաբելային հեռուստատեսություն
- Կահույք
- Ներկառուցված պահարաններ
- Նկուղ
- Պատշգամբ
- Ջեռուցում
- Վերելակ
- Տեխնիկա
- Օդորակիչ









